1997/98 – Studio di Architettura Gregotti-Associati, Venezia:
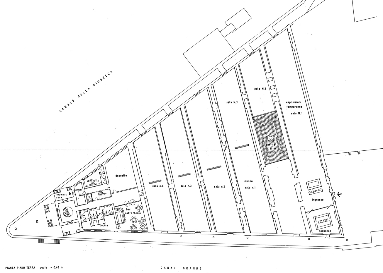
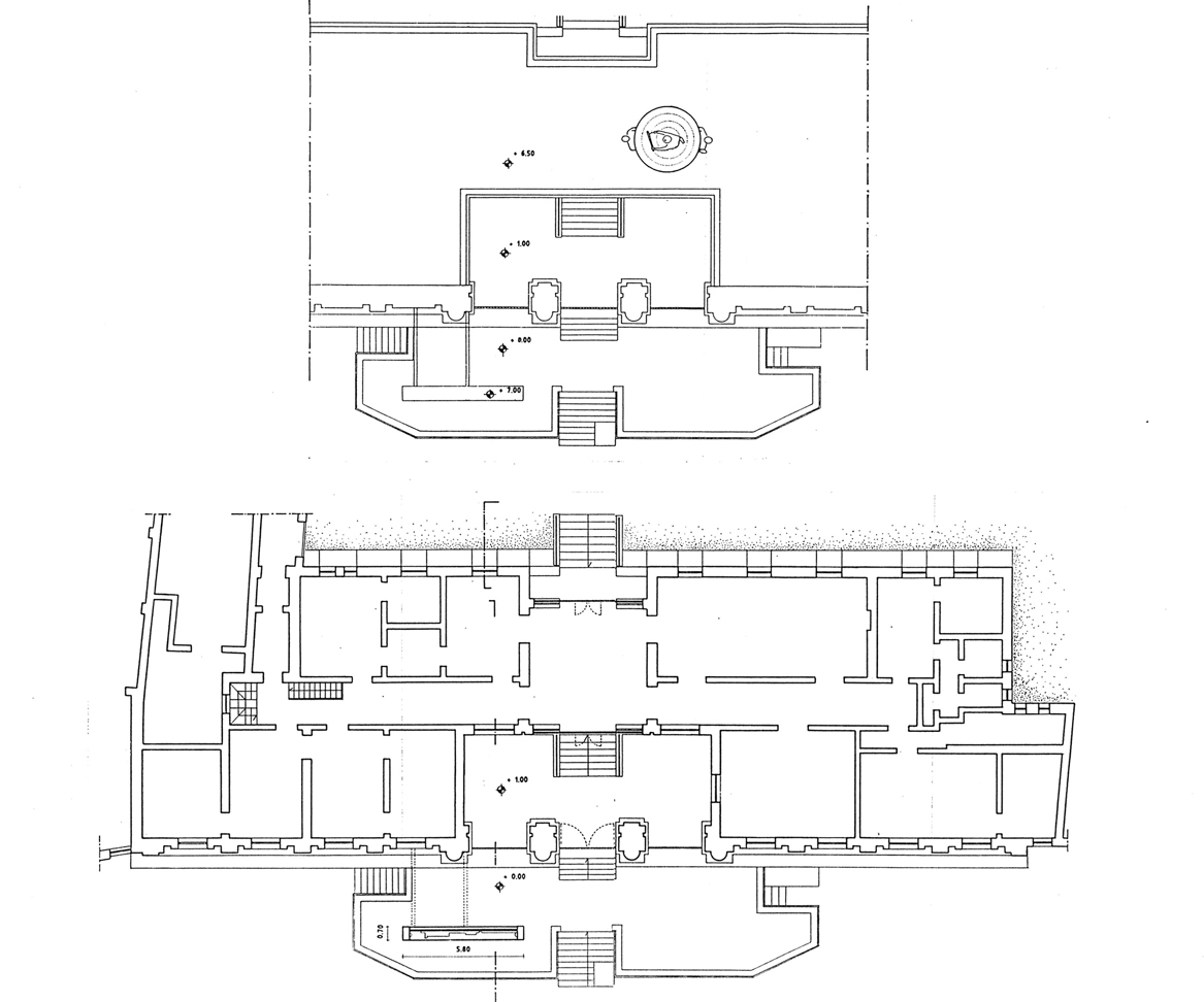
Progetto per il Museo Guggenheim alla Punta della Dogana, Venezia
Progetto di allestimento di una teca espositiva per il Museo Guggenheim , Venezia
Progetto di riorganizzazione fisico-funzionale dell’isola di S. Giorgio Maggiore, Venezia
Piano di recupero Area Ex Lanerossi – Agostiniane, Schio
Proposta preliminare di piano attuativo Parco della Favorita, Valdagno
Progetto di alloggi Comparto P.E.E.P – C/20, Cesena
Progetto secondo stralcio Area Saffa, Cannaregio, Venezia
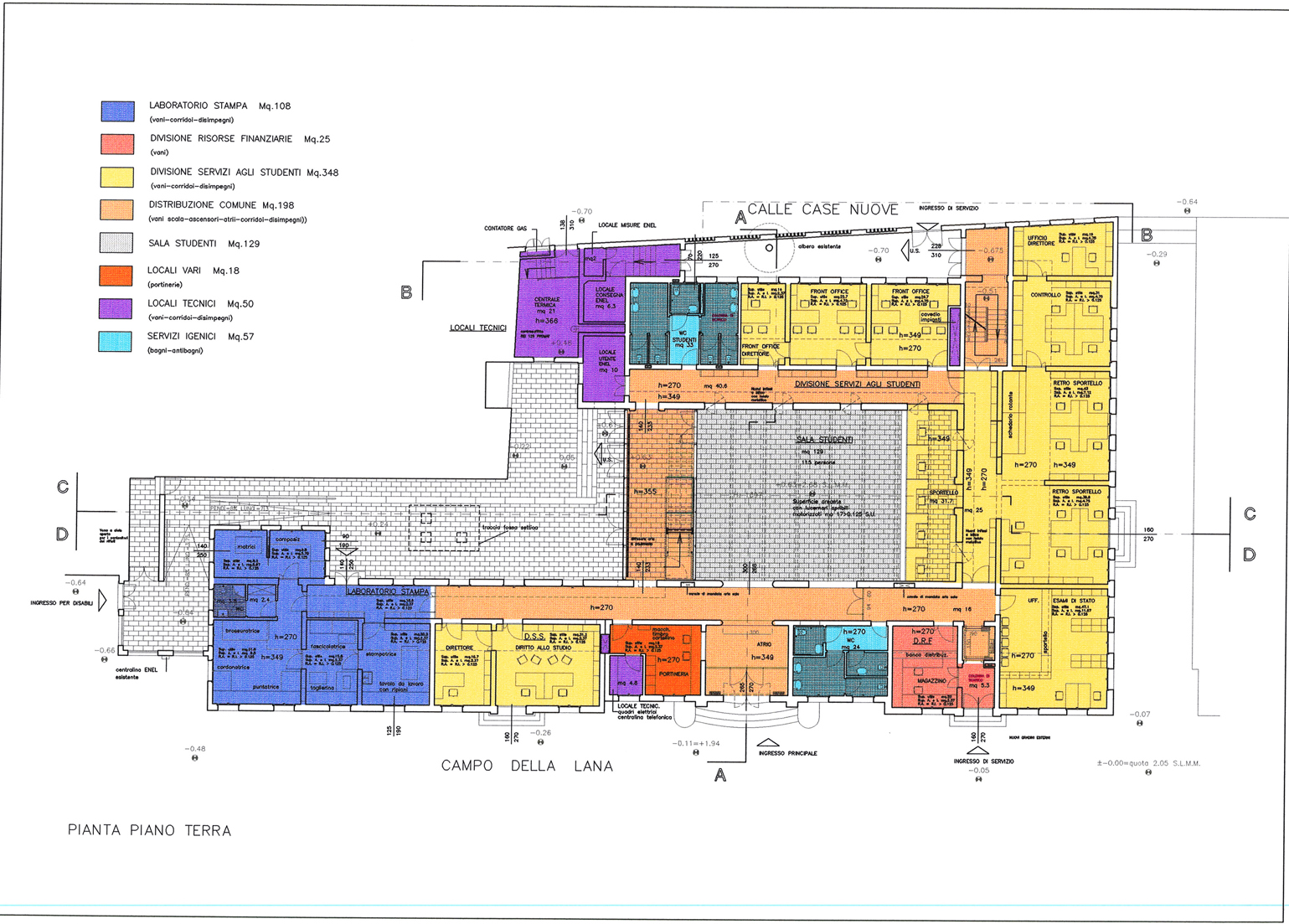
I.U.A.V. Progetto di ristrutturazione edificio in Campo della Lana, Venezia






















